Hva er det med “Takgeometri”?

Ordet «takgeometri» har ikke tidligere blitt brukt i Norge (så vidt vi kjenner til), det er bare en direkte oversettelse fra engelsk som vi i Handverkslaget har brukt på grunn av at det på en måte er selvforklarende. Egentlig heter dette skiftning på norsk. Ordet skiftning er fremmed for folk i dag, og vi skal her gå litt nærmere inn på hva dette er og hvordan det fungerer.

 
«Skiftning, arbeidsteknikken som definerte tømrerfaget. »
 

Om det er en arbeidsteknikk som definerer selve tømrerfaget som fag, så er det skiftning. Man kunne kanskje heller si at lafting, som også rett og slett blir kalt tømring, er det som har definert faget fra gammelt av. Det kommer an på hvordan man ser det - utspringet til faget i Norge kommer nok av dette. Men om en snakker om faget som fag, altså slik det etter hvert ble et fag med organisert opplæring og ordninger med svenneprøve osv., så er skiftningen det som var hovedfokus på svenneprøven, og som i stor grad skilte en faglært tømrer fra en ufaglært bygningsarbeider.

Skiftning er rett og slett en metode for å bruke projeksjonstegning i full målestokk for å finne det vi kaller sann lengde og riktige sammenskjæringsvinkler i komplekse konstruksjoner. For å gjøre dette trenger vi en «avbindingsplass» - et flatt gulv, også kalt et profilplan. Dette var noe tømreren kunne slå sammen av bord ute på byggeplassen. En kunne også bruke loftsbjelkelaget på bygget. Større trelasthandlere hadde tidligere som et tilbud til kundene ofte et slikt oppslagsplan som tømrerne kunne låne.

Figur 1. K. Brun 1927. Beskrivelse av skiftning og avbindingsplass.

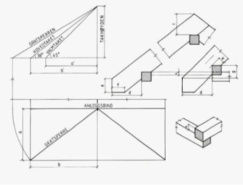
Figur 2. K. M. Viestad 1968 En plassbygd enkel avbindingsplass. På tegningen ser vi en avbindingsplass laget for eksempel av bord som er støttet opp av og festet på lekter eller lignende. Vi ser at i en situasjon ute på en byggeplass kan en nøye seg med et oppslagsplan som ikke er et helt gulv, men som danner rammene for profilet av selve takkonstruksjonen i full målestokk. Vi ser at hovedlinjene i konstruksjonen er snoret opp. I dette oppsettet mangler selve plantegningen av valmen, dette trenger vi for å finne «gratens lengde målt i grunnriss»

Problemstillingen med å finne sanne lengder ved hjelp av projeksjon vil nok virke fremmed for mange. Hvorfor ikke bare måle denne lengden på plassen?  Denne metoden ble i hovedsak brukt når en skulle bygge komplekse takkonstruksjoner. Etter tidligere normer skulle slike konstruksjoner helst skjæres sammen på en pen og ryddig måte. Dette krever at en må håndtere en mengde ulike mål og vinkler som er godt tilpasset til hverandre. En amatør ville da gjerne kanskje prøve å bare bygge dette på plassen bit for bit og måle til delene etter hvert. En slik arbeidsmåte vil føre til en mengde med klatring, måling, prøving og feiling. En fagmann vil skjære til alle delene på forhånd og montere dette i en logisk rekkefølge, og metoden fagmannen nyttet for å kunne gjøre dette i tidligere tider var altså skiftning. På samme måte som i andre håndverksfag er altså det som kjennetegner en god fagperson at hen kan komme fram til et ønsket og på forhånd definert resultat gjennom en kontrollert og systematisk prosess. Man ønsker ikke at tilfeldighetene skal styre.

Selve oppslaget tar utgangspunkt i en plantegning, altså en tegning av konstruksjonen sett ovenfra, men før denne kan etableres fullstendig på oppslagsplanet må man finne alle sammenskjæringslinjene i taket. Skjæringslinjene finner man ved at man tegner opp både plan og snitt og sammenstiller dette for å se hvor de ulike takflatene møtes.  

Figur 3. N. P. Nielsen. Her ser vi hvordan man ved hjelp av plan og snitt finner skjæringslinjene i et valmtak med to ulike fløyer. Den isometriske tegningen nede til høyre er kun for illustrasjon. Nede til venstre i tegningen ser vi selve planen, over dette ser vi et lengdesnitt og til høyre oppe et tverrsnitt der man har funnet målet x fra mønet for å kunne konstruere dette riktig i plan.

Når sammenskjæringslinjene er etablert kan man begynne å tegne selve planet i full målestokk med tømmerdimensjoner og ulike vannrette bygningsdeler (for eksempel svill og møneås) som takverket skal lande på. Fra denne tegningen og høydene i snittegning kan selve profilet utarbeides. Profilet er tegningen man skal bruke til å legge tømmeret på for å merke dette, man legger altså tømmeret ut på en tegning i full målestokk (profilet) og merker alle ut-hakk og sammenskjæringer fra tegning til tømmer.

Figur 4. "Garnet de Lapin" 2012. Dette er en illustrasjon som forsøker å vise hvordan man overfører mål fra tegning til tømmer. Vi ser at målene på tegningen (merkene på profilet) må føres ut i lange linjer, slik sørger en for at de blir synlig når tømmeret ligger på avbindingsplassen. Nummereringen av merkene overføres fra plan til profil og gjerne videre til tømmer for å tydeliggjøre hva som er hva.  

Problemstillingen er at vi verken i tverrsnitt, lengdesnitt eller plan kan se for eksempel gratsperrets sanne lengde. Studer figur 3. Linjen G-H vil utgjøre det vi kaller et gratsperr (ryggsperr). Linjen I-E vil danne et kilsperr (rendesperr) og linjen I-K vil danne en nedfallsgrat. Ofte vil kortere sperr treffe gratsperr og kilsperr, dette kaller vi skiftesperr (stikksperr). I fortsettelsen vil vi bruke betegnelsene gratsperr, kilsperr, gratskifte og kilskifte. Kilskifte går fra mønet og ned til der det treffer kilsperr, og gratskifte går fra takfot og opp til det treffer gratsperr. Vi ser på plantegningen og snitt-tegningen at de nevnte gratsperr og kilsperr skrår i to ulike plan, både i takets helningsvinkel og på skrått i plan, og dermed vil ikke sann lengde kunne avleses hverken fra plan eller snitt. Men i figur 3 ser vi også hvordan sann lengde blir etablert. Se linje G-H, hvor lengden i plan blir projisert opp i snitt-tegningen, og dermed finner sann lengde. Det er dette som er prinsippet for å tegne ut selve profilen, men det må gjøres mer detaljert.

Figur 5: Michalsen. Figuren viser et oppslagsplan hvor vi finner sann lengde på gratsperr nede til høyre og vanlig sperr + gratskifte øverst. Vi ser at plantegningen danner hovedmålene sammen med snittet av vanlige sperr hvor vi finner mønehøyden merket H. Vi ser også hvordan lengden av gratsperr i plan kombinert med H gir oss sann lengde og fall på gratsperr. Legg merke til at i denne tegningen danner det som er senterlinje av gratsperr i plan grunnlinjen på profilet av gratsperr. På tegningen er gratsperr og gratskiftet også tegnet omkantet slik at vi ser underside, dette blir ikke gjort i praksis ved tilskjæring av tak, men det er vanlig å bruke i tegneøvelser. I dette eksempelet er det ikke hverken mønedrager, toppramme eller takutstikk, dette forenkler utformingen av sperret vesentlig.  

Figur 6. Axel Weller 2017. Skisse av et gratsperr med gratskifter.

Figur 7. Bilde av et gratsperr og gratskifter fra sett fra innsiden.

Om vi kikker litt nærmere på figur 5 ser vi at lengden i plan kombinert med takvinkel eller mønehøyde gir oss sann lengde og sammenskjæringsvinkler på gratsperr. Videre ser vi at gratskiftet kan projiseres direkte på profil av et vanlig sperr. Dette kommer av at skiftesperrene har samme fall som hovedtaket. Grat- og kilsperr har en lengre vei fra takfot til mønet på grunn av skråstillingen i takflaten, derfor vil disse få et slakkere fall. Om vi ser nøye på tegningen ser vi også at gratsperret får en fas (avgrating) langs toppen som svarer til de to takflatene den møter, derfor navnet «ryggsperr».

 
 

Kil

Konstruksjonen av et kilsperr og kilskifter er i prinsippet lik den for gratsperr og gratskifter. Kilsperren til liks med gratsperren møter de to takflatene, men denne møter takflatene nede i en «dal» derfor navnet «rendesperr». Her har man to mulige løsninger, man kan enten hugge et V-formet spor i selve kilsperret eller man kan lage en «klo» på kilskiftet som griper inn på kilsperret.

Figur 8. Et kilsperr med klo, modellbygging fra et kurs i skiftning med Axel Weller. NTNU-studiet, tradisjonelt bygghåndverk og restaurering. Læringsarena Vestland.

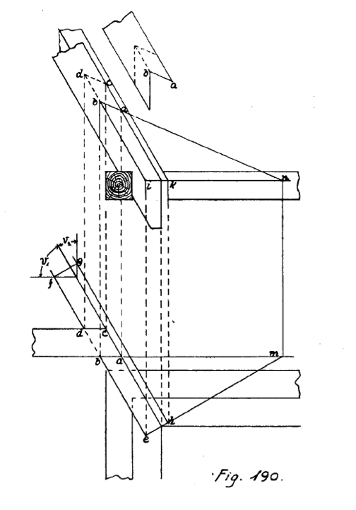
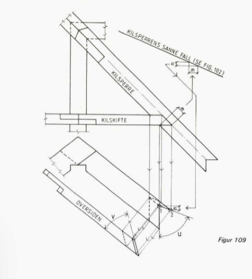
Figur 9. K. M. Viestad 86. Konstruksjon av kilskifte med klo. Vi ser hvordan man kombinerer bruken av plan og kilprofil for å utarbeide et riktig profil av kilskiftet. Det finnes flere ulike metoder for å finne klovinkelen på et kilskifte.

Nå begynner ting å bli litt mer avansert. På figur 9 ser vi øverst bare en strek som representerer kilsperrens sanne fall. Under denne ser vi en plantegning av kilsperr med kilskifte, nederst en profil av et kilskiftet som har samme fall som taket for øvrig. Om vi skal forsøke å avsløre hva som foregår må vi ta det stegvis og følge tegningen. Kilsperren er flat på toppen, og den har slakkere fall enn resten av taket. Dermed må vi finne forskjellen mellom fallet (takvinkelen) på kilsperret, og fallet på selve skiftet. Spørsmålet vi vil ha svar på er hvor mye stiger kilsperret i avstanden m? svaret er u og vi må da flytte u ned på profilet av kilskiftet. Dette er en enkel metode for å finne kloa. Men det finnes mer nøyaktige og elegante metoder.

Figur 10. Michalsen Bergen tekniske aftenskole 1928. Her ser vi et kilsperr hvor en fokuserer på beregning av klo på kilskiftet. Dette er en litt kompleks konstruksjonsmetode hvor en tar i bruk det N. p. Nielsen kaller for «planets spor». Uansett er prinsippet med å gå fra plan til profil i bruk.

Metoden for å finne kloa på kilskiftet som er i bruk i figur 10 er mer elegant og nøyaktig enn den vi ser i figur 9. Linjen e-h fra fotpunktet på kilsperret er forlenget til den møter et punkt m hvor den treffer en linje som ligger parallelt med kilskiftet, punktet er videre projisert opp i profilet. Dette blir straks mer komplekst, og for å forstå det må vi godta å bevege oss vekk fra det konkrete sperret og heller tenke oss mer abstrakte flater eller linjer som ligger i plan med sperrene.

Figur 11. Michalsen 28. Et kilsperr med "kilrenne"

Om vi utarbeider kilsperret som på figur 11 slipper vi unna kloa på kilskiftet, konstruksjonen av dette tilsvarer konstruksjonen av avgrating på et gratsperr.

 
 

Gratskifte med klo

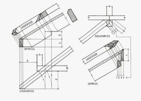
Om vi nå tenker oss en planke (sperr) som står på skrå opp langs en takflate, kapper vi denne i lodd (vertikalt) vil flaten i tverrsnittet bli lengre en om en kapper den i vinkel, dess brattere den står dess lengre blir denne snittflaten. Når vi nå vet at gratsperret har en slakkere vinkel enn gratskiftet så forstår vi at om gratsperr og gratskifte har samme dimensjon så vil snittflaten der gratskiftet møter gratsperret (kinnsmigen) henge nedenfor kanten av gratsperret. Synlig endeved skal helst ikke forekomme i en fagmessig utført konstruksjon. Det gir oss to valg, enten velge større dimensjon på gratsperr en på gratskiftet eller lage en klo på skiftet som griper på undersiden av gratsperret. En slik klo ble regnet for å være en pen og skikkelig løsning, vi ser den ofte i gamle fagbøker men mer sjelden i stående bygg.

Figur 12. Michelsen 27. Konstruksjon av klo på gratskiftet.

Figur 13. Martin Herman 2020. På en slik bygning med to like fløyer vil kilsperr og gratsperre møtes. Sammenskjæringslinjene i taket er markert med et kryss.

Møte mellom gratsperre og kilsperre. Dette er ikke spesielt avansert, men det krever systematikk som alt annet innen skiftning.

Figur 14. K. M. Viestad 86. Møte mellom gratsperr og kilsperr.

Om vi studerer figur 14 nøye ser vi blant annet at gratsperra møter mønedrageren på et utvendig hjørne av denne og at det blir omvendt på kilsperra. Viestad bruker ordet «grunnriss» for plan og «oppriss» for profilet, vi ser at han bruker en målelekt for å flytte måla fra plan til profil. Det er slik en arbeider på en avbindingsplass.

 
 

Nedfallsgrat

Du finner en slik i figur 3 på plantegningen er den merket I-K. En nedfallsgrat kan i prinsippet konstrueres på samme måte som en vanlig gratsperre. Problemstillingen blir at den gjerne møter flere andre sperr. Her må vi holde tunga beint i munnen, men vi er fremdeles i en symmetrisk takflate.

Figur 15. K. M. Viestad 73. Nedfallsgrat. Plantegning nede til høyre, profil nede til venstre som er omkantet for lesbarhetens skyld.

Figur 16. K. M. Viestad 73.En nedfallsgrat som er forlenget slik at den møter et vanlig sperr i den nedre enden.

 
 

Usymmetriske tak

Når en gratsperr eller kilsperr deler to takflater som har ulik takvinkel blir konstruksjonen mer kompleks, sperra står ikke lenger i 45 grader i plantegningen slik både grat og kil gjør i symmetriske tak. Dette fører til at antallet punkt som må overføres dobles opp og skiftesperrene blir ulike fra ene takflaten til den andre.

Figur 17. K. M. Viestad 73. Her viser Viestad at også salingshakket for toppramma får ulik dybde fra ene siden til den andre når en har et usymmetrisk tak. Blir ulikheten stor må en gjerne bygge opp toppramma i ene takflata.

Figur 18. K. M. Viestad 73. Her ser vi hvordan gratsperra avviker fra 45 grader i plan på et usymmetrisk valmtak og hvordan dette endrer profilet ganske radikalt. Også avkantingen eller avgratingen blir usymmetrisk, se snitt av gratsperr som er skravert øverst i midten.  

Figur 19. Michelsen 27. Usymmetrisk grat.

Figur 20. Michelsen 27.  Usymmetrisk kil.

 
 

Fagutdanning

Illustrasjonene som er brukt i denne artikkelen er alle (bortsett fra Martin Hermann sin) hentet fra lærebøker i tømrerfaget. Etter hvert ble tømrerfaget ble mer organisert, noe som skjedde senere i dette faget enn i mange andre fag (tømrerne i Norge hadde ikke sterke laug slik som for eksempel snekkerne). Når organisering og fagutdanning kom i gang ser vi at selve skiftningen blir et viktig tema som det fokuseres på i læremateriell og svenneprøve. Høydepunktet i Norsk litteratur om skiftning er så vidt oss bekjent boka til N. Peder Nielsen «Avbinding av takkonstruksjoner og konstruktive forskalingsarbeider» 1932. Arkitekt N. Peder Nielsen var lærer ved Statens Håndverks- og Industriskole i Oslo. I forordet til boka skriver Nielsen at mange unge svenner klager over at de ikke får lov å delta på skiftning, og at de som behersker dette ikke alltid er like villig til å lære opp andre, derfor forbindes denne delen av faget med en viss grad av mystikk. Det finnes flere fagbokforfattere som går inn på temaet skiftning i sine bøker, flere av dem har kanskje en mer lettfattelig og praktisk anvendbar forklaringsmodell en Nielsen.

Figur 21. K Brun 1927.

Nielsen har flere ulike fagbøker der han kommer inn på skiftning, i den overnevnte boka kommer han inn på mer avansert stoff.

Figur 22. N. Peder Nielsen 32. plan 2. Dette er «øvingsoppgave nr. 2» i boka. Etterhvert kommer Nielsen inn på mer komplekse konstruksjoner. Til høyre i plansjen har vi en valm på en gavl som er ute av vinkel, vi ser hvordan dette straks blir mer komplisert, når vi i tillegg har et gratskifte som ikke står 90-grader på takfoten skaper dette ytterligere utfordringer.

I Tyskland og andre land lengre sør i Europa har tømrerfaget hatt sterkere laug og faglitteraturen kom tidligere. I tillegg har tømrerfaget tatt en litt annen retning da nærmest de fleste bygninger hovedsakelig ble bygget av murerne. Slik har tømrerens oppgave i Tyskland i større grad vert rettet mot takkonstruksjoner og dermed skiftning.

Figur 23. Abbundplatz fra boken: Zimmermannskunst av Johan Schubler (1731)

Etter krigen ser vi en gradvis forenkling i fagbøkene, og de aller mest komplekse problemstillingene blir lagt til siden. Samtidig som faget blir enklere gir selvsagt dette også en begrensning av en tømrers handlingsrom. Skiftning som tema er tilstede gjennom hele perioden etter krigen og fram til slutten av 1980-tallet. Konrad Middelthon Viestad 1918-2002 ser ut til å være den dominerende fagbokforfatteren i denne perioden. Etter dette går fagbøkene over fra projeksjon til trigonometri som er matematiske beregninger kombinert med bruk av maler, dette begrenser nok muligheten for de aller mest komplekse konstruksjonene som uansett ikke er særlig etterspurt i markedet.

Anders Frøstrup (1951-2019), som tydelig behersker både projeksjon og trigonometri ser ut til å være en av pådriverne for denne moderniseringen av faget. Vi vil legge til at omtrent på samme tid begynner produksjon av valmtak å bli industrialisert i større og større grad. De såkalte takstolfabrikkene tar etterhvert over størstedelen av dette markedet, og tømrerfaget endres. Boka «Måling og kapping av taksperrer» av Anders Frøstrup 1985 er en gjennomarbeidet fagbok som signaliserte en viktig endring. Denne typen endring har flere forklaringer, det kan tilskrives både en generell endring av byggfagene der utøverne selv mistet mye av kompetanseområdet som i større og større grad blir overtatt av arkitekter og industri. Samtidig har bygningene i stor grad blitt forenklet og materialene ble mer og mer standardisert. Fortidens skurlast og øksede materialer har blitt justerte dimensjoner som er målkonsistente og kan dermed håndteres på en annen måte.

Figur 24. K. M. Viestad 1973. En oppgave i tømrertegning.

Figur 25. Eksempel fra boka til Anders Frøstrup Måling og kapping av taksperrer 1985. Her handler det om trigonometri, en takkonstruksjon består av ulike rettvinklede trekanter, derfor kan trigonometri benyttes til å regne ut lengder og vinkler. Ut fra dette kan en lage seg maler for ulike kappvinkler, salingshakk osv.

 
 

Svenneprøven

En svenneprøve i tømrerfaget før krigen vil i stor grad inneholde oppgaver i skiftning. Vi skal se på en slik svenneprøve som er gjengitt i boka «avbinding av takkonstruksjoner og konstruktive forskalingsarbeider». Jeg siterer fra boka. «oppgaven som er behandlet i plan 19 er en svenneprøveoppgave som er gitt i Oslo d. 7. sept. 1926. Oppgaven er sålydende: Konstruer et åsetak til en hjørnegård av mur med fløyer til to kater. Den ene fløy er 8,20 m. den annen er 9,75 m. fra skarpt hjørne. Fløyene danner en stump vinkel, diagonalen er 14,55 m. Den ene fløi er 7,65 m.; den annen 9,95 m. bred. Der er brutt hjørne på 2,75 m. til gården med like vinkler til begge sider. Fra overkant loftsbjelkelag til gesims er 0,65 m. til gaten og 1,15 til gården. Taket gis samme fall til begge fløyer. Spend stolper og hanebjelker anbringes av dem selv slik at dem blir teoretisk og praktisk riktig. Gesimsen legges 0,25 m. ut fra murlivet til gaten og 0,12 til gårdsiden.»

Vi får et forslag til svar på denne svenneprøven på plansje 19 i boka.

Figur 26. N. Peder Nielsen 32. plansje 19.

 
 

Komplekse tak

Ved hjelp av skiftning kan tømreren takle uvanlig komplekse takkonstruksjoner vi skal se på noen eksempler. De første bildene er fra et prosjekt med delvis rekonstruksjon av en takkonstruksjon på et slott i Frankrike. Axel Weller leverte anbud på prosjektet i konkurranse med et større cnc-fres basert firma. Takkonstruksjonen var såpass kompleks at fabrikken måtte regne inn en del ombygginger eller tilpassinger av maskinene. Slik vant Aksel anbudet, til tross for at Aksel utelukkende arbeider med ikke-motoriserte håndverktøy. Arbeidet med takkonstruksjoner ble gjennomført på tradisjonelt vis ved hjelp av skiftning, altså projeksjon og ikke trigonometri. En stor svingtrapp over flere etasjer i eik ble rekonstruert etter samme prinsipp.  

Figur 27. Fra Axel Weller sitt prosjekt med gjenreising av en takkonstruksjon på et slott i Frankrike. Vi ser at denne konstruksjonen både har en innerkonstruksjon og ytterkonstruksjon.

Figur 28. Axel Weller. Samme prosjektet som over.

Figur 29. Axel Weller samme prosjekt som over.

Figur 30. N. P. Nielsen 1932. Plan 5. Vi ser et ark som treffer hovedtaket i en skrå vinkel.

Figur 31. N. P. Nielsen 1932. Plan 7. Vi ser en del av et tak med kilsperr i en vindskjev takflate, her har en valgt å utarbeide et kilsperr som buer i to ulike plan. Dette er gjennomførbart men det er usikkert om slike tak faktisk eksisterer i Norge, eller om dette er en mer teoretisk øvelse.

 
 

Videreføring

Handverkslaget arbeider aktivt for å gjenreise denne delen av tømrerfaget i Norge, og vi synes at dette er viktig og nyttig kunnskap. Denne kunnskapen får betydning både for videre utvikling av faget, bevaring av fagets historie og i forbindelse med restaureringsarbeid på freda og verneverdige bygg. Vårt arbeid med dette har vert todelt - vi har organisert noen praktiske kurs i skiftning, og vi har startet handverkslagets takgeometri-gruppe. Denne gruppen har en egen plattform som er nettbasert.

Artikkel skrevet av Handverkslaget - Foreningen for Tradisjonshandverk, ved Trond Oalann, 8. februar 2021.

Gasta Design

Vi skaper lønnsame nettsider basert på Squarespace, og utviklar gjerne din visuelle identitet eller hjelper deg med digital markedsføring.

https://www.gasta.no/
Forrige
Forrige

Kulturminnevern, en lekeplass for kulissemakere?

Neste
Neste

Kurs i grindbygg i regi av Handverkslaget